Failure to follow the below precautions and the warning and caution instructions in this manual may result in. Ovation fuel dispensers helix fuel dispensers vista fuel dispensers high speed vista fuel dispensers century select fuel dispensers reliance fleet dispenser.
Dispensers Amp Accessories Dresser Wayne Dispenser
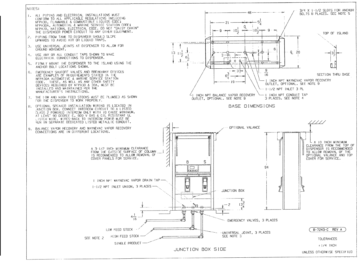
Wayne dispenser wiring diagram. Wayne has been manufacturing quality fuel dispensers and related technology for more than 120 years. This is a field wiring diagram for the eclipse dispenser. Healy systems ovation reliance dispensers e85 ovation blender dispensers e85 wayne ul certifications. Series 9800k pumps and dispensers installationoperation manual. Atlas wiring diagrams. Full service stand alone dispenser wiring data wires shown on the wiring diagram are for connecting the dispenser to the data distribution cabi net and the site controller cabinet in a wayne control system.
920749 rev g 72014 1 1 introduction 11 dispensers covered this manual describes the installation and operation of the wayne reliance g5200 and g6200 series mechanical registration fleet dispensers. Fe 353c field wiring diagram encore 550 dispensers 120240 vac 0315. Fe 357 atlas pump retailcommercial field wiring diagram. Dispensers have both electricity and a hazardous flammable and potentially explosive liquid. Our people and partners are proud of the products we make and the services we provide. Find a distributor or.
The wayne helix series fuel dispenser is a global family of products with all models sharing the same design languagea wayne dna. How to contact wayne trouble with the installation and operation of the dispenser should be referred to your authorized wayne service personnel or wayne technical support 1 800 926 3737. Fe 356 atlas dispenser retailcommercial field wiring diagram. Wayne designed and engineered the entire helix dispenser family on a single global platform which emphasizes intelligent design transaction security and advanced technology. Page 2 never lift by the nozzle boot sheet metal valance etc otherwise equipment damage or per sonal injury may occur. Wayne fueling systems is a leading supplier of fuel dispensers payment terminals forecourt control devices point of sale and measurement and control solutions to retail commercial fueling customers in over 140 countries.
Fe 350b gilbarco veeder root consolidated wiring pkg 0620 this manual contains the wiring diagrams for pos dispensers and car wash kiosk. Fe 361 atlas master satellite field wiring diagram. Page 1 3vista series blending and non blending dispensers. These data wires are not required for the full service stand alone dispenser.















