The machine is built with the most rugged components to our highest specifications for unmatched reliability and consistency. Most of the tutorials on this site are created in response to the difficulties i see users having with machines mechanics structural dimensions and the electronics.
Cnc Machine Wiring Harness Down3 Zografisch Nl
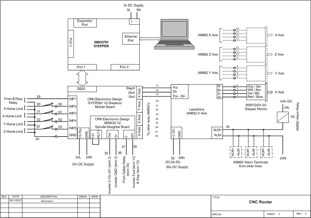
Cnc machine electrical wiring diagram. Fadal servo coolant wiring diag. View profile view forum posts visit homepage stainless. Machine tool wiring diagram symbol reference guide. Cnc 88 32mp e stop circuit. Cnc machine this is diagram about cnc machine. The cnc wiring diagram shown in this page is created using mechanical desktop version 6 and the wiring digram is showing you the very basic cnc wiring circuit diagram.
This machine is built for all day production and is capable of running any of our hd plasma cutters. Operation of your cnc or automated machinery. Cnc electronics and wiring this tutorial will make you an expert in wiring cnc electronics using a parallel breakout board and standard stepping motors and stepping motor drivers. Basically this cnc machine controlled by the cnc machine controller which consists of a cnc servo drive to control all the electrical parts such as axes servo motors coolant motor hydraulic motor spindle motor lubrication motor inverter working light dc contactors and dc reversing contactor. Common y and delta transformer avm science and technology. Results 1 to 4 of 4 thread.
This solution allow a general quicker connection and a simple wiring but force the use of three or four identical or similar stepper motors. The cnc wiring diagram shown in this page is created using mechanical desktop version 6 and the wiring digram is showing you the very basic cnc wiring circuit diagram. Hall to reed sw conversion. Wiring diagram for power supplies v posv c v com gnd l n l n l n switch mode psus 48 volt with our low inductance nema 23 stepper motors page 3. These diagrams are a guide to wiring your machine and do not constitute. 4th axis servo options.
Electrical and electronics engineering. Ge fanuc 18i wiring diagram. The lincoln electric torchmate 5100 is our flagship industrial cnc plasma cutting table. Audio battery chevrolet cigar lighter circuit circuit diagram circuit diagrams electrical circuit electrical diagram electrical schematic. Basically this cnc machine controlled by the cnc machine controller which consists of a cnc servo drive to control all the electrical parts such as axes servo motors coolant motor hydraulic motor spindle motor lubrication motor inverter working light dc contactors and dc reversing contactor. 06 24 2009 1129 am 1.
Eleksmaker eleksmill cnc micro engraving machine with 500mw laser module. Machine tool wiring diagram symbol reference guide.
















